Press Release from AllWaves:
AllWaves is proud to unveil the first plans for a commercial wave pool, located in Germany. An agreement was made between AllWaves & Stoke GmbH, being the first of many Stoke surf resorts planned by both parties.

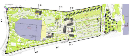
Its location is centered in the landlocked area of Leipzig. “We are proud to bring the future of surfing to Leipzig’s Neuseenland district and to contribute to the development of this former mining region that is now focused on water sports and nature-based tourism. The wave pool technology by AllWaves looks like a natural lake and blends perfectly in the area’s environment, which features multiple lakes around the city of Leipzig.” says Stoke CEO Mike Berus, who grew up in the area. “We are putting the Neuseenland District on the worldwide map of surfing”.
In September 2024, Stoke reached an important milestone by presenting comprehensive planning documents to various offices and authorities. Stoke adds that the site will boost the local economy by creating new jobs, attract high quality tourism geared towards outdoor enthusiasts, and enhance the well-being of the local community by providing a unique recreational space. Construction could start in 2026.

Meanwhile, the AllWaves wave pool technology is being demonstrated at the company’s R&D site in Knokke-Heist, Belgium, where surf park developers can witness it firsthand.
Designed to be safe, natural in look and feel, energy-efficient, and financially accessible. AllWaves features a proprietary pillow technology that mimics the movement of ocean waves, with customizable waves to delight surfers of every ability.
“I’m thrilled to share this important milestone,” said Steven Nauwelaerts, AllWaves founder and CEO. “We are revolutionizing the surfing experience, allowing enthusiasts to surf close to home, without the unpredictability of ocean conditions. With a strong partner with a vision, like Stoke, the customer experience will be above & beyond.”
About AllWaves
AllWaves is a Belgian start-up company in wave pool technology, dedicated to creating the safest wave pools with a natural look and feel. AllWaves develops, promotes & maintains technology for making surfable waves.




You must be logged in to post a comment Login